




緑豊でくつろぎの場所、リビング広々約23帖!広々としたルーフバルコニーからの眺めも良好!浴室からは中庭を望む!ペット可!是非一度ご覧下さい!
物件詳細情報
物件No.20000446492
| 所在地 | 神奈川県平塚市唐ケ原 | ||
|---|---|---|---|
| 交通 | 東海道本線「平塚」駅バス10分 バス停「東町3丁目」停歩1分 東海道本線「大磯」駅バス7分 バス停「東町3丁目」停歩1分 |
||
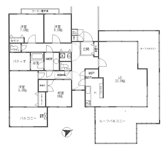
| 間取 | 4LDK | ||
| 専有面積 | 138.27m² | ||
| 構造・規模 | 鉄骨鉄筋コンクリート造 6階建て 6階部分 |
築年・入居 | 1983年10月築 |
| 現況 | 空室 | 引渡時期 | 相談 |
| 権利種類 | 所有権 | 管理費 | 25,810円/月 |
| 修繕積立金 | 24,190円/月 | 管理形態 | 日勤 全部委託 |
| 管理会社 | 東京建物アメニティサポート | ペット | 可 |
| 取引態様 | 媒介 | ||
こだわり項目
LDK15帖以上ルーフバルコニー角部屋2面以上バルコニートイレ2ヶ所浴室に窓海まで2km以内陽当り良好通風良好眺望良好
- ※価格は物件の代金総額を表示しており、消費税が課税される場合は税込み価格です。(1,000円未満は切り上げ。)
税率は引き渡し時期により異なりますので、各物件の詳細につきましてはお問い合わせください。 - ※敷地権利が借地権のものは価格に権利金を含みます。
- ※制作中に内容が変更される場合もありますので、あらかじめご了承ください。
- ※購入の前には物件内容や契約条件についてご自身で十分な確認をしていただくようにお願いいたします。
- ※完成予想図はいずれも外構、植栽、外観等実際のものとは多少異なることがあります。
- ※CG合成の画像の場合、実際とは多少異なる場合があります。
周辺地図
周辺施設一覧
- ショッピングセンター
- スーパー
- コンビニ
- ドラッグストア
- ホームセンター
- 飲食店
- その他店舗
- 商店街
- 大学
- 専門学校
- 高校・高専
- 中学校
- 小学校
- 保育園
- 幼稚園
- 公民館・児童館
- 病院
- 郵便局
- 役所
- 図書館
- 金融機関
- 警察・消防
- 趣味・娯楽施設
- 公園・運動施設
- 周辺の街並み
- 駅
- その他
お問い合せ先
- 平和ホーム株式会社
- お電話でのお問い合わせは
0463-32-9922「ホームページを見た」とお問い合わせください - 神奈川県平塚市見附町12-1
- 営業時間:10:00~18:00
- 定休日:毎週火・水曜日
- 免許番号:神奈川県知事免許(4)第26970号






