- 住まいの相談室 平和ホーム株式会社ホームページ
- 土地をエリアから探す
- 平塚市
- 南原
- 平塚市南原3丁目全2区画の土地
土地
平塚市南原3丁目全2区画の土地
情報更新日:2026/05/28 次回更新予定日:2026/06/11 取引条件有効期限:2026/06/11
所在地神奈川県平塚市南原3丁目[周辺地図]
交 通東海道本線「平塚」駅バス18分 停歩9分





落ち着きのある閑静な住宅街に位置した35.37坪の全2区画!東・西の2方道路に面した開放感ある整形地!徒歩圏内に買物施設が整った住みやすいエリア!お好きなハウスメーカーで建築可能な条件なし売地です!是非一度現地をご覧下さい^^
担当スタッフより

- 平野和志
- ◇ほどよい広さの敷地面積35.37坪
◇車通りの少ない閑静な住宅街
◇建築プランの立てやすい整形地
◇ミニストップまで約560m、しまむらストアまで約624m、ヨークフーズまで約700m、平塚御殿郵便局まで約730m、徒歩圏内に生活施設が充実しており利便性良好
気になるハザードマップの該当がない地域です!お好きなハウスメーカーで夢のマイホーム実現しませんか?お気軽にお問い合わせ下さい!
物件詳細情報
物件No.20000404205
| 所在地 | 神奈川県平塚市南原3丁目 | ||
|---|---|---|---|
| 交通 | 東海道本線「平塚」駅バス18分 バス停「南原土手」停歩9分 | ||
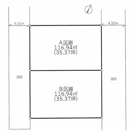
| 土地面積 | 116.94m² | ||
| 販売区画数 | 2区画 | 総区画数 | 全2区画 |
| 用途地域 | 第一種住居地域 | 建ぺい率 | 60% |
| 容積率 | 200% | 都市計画 | 市街化区域 |
| 建築条件 | 建築条件なし | 地目 | 宅地 |
| 現況 | 更地 | 引渡時期 | 相談 |
| 権利種類 | 所有権 | 接道 | 東側4.5M公道に8.6M接道 西側4M公道に8.6M接道 |
| 小学校区 | 南原小学校(888m) | 取引態様 | 媒介 |
| 設備 | 公営水道、本下水 | ||
こだわり項目
整形地平坦地閑静な住宅地保育園・幼稚園800m以内公園800m以内
- ※価格は物件の代金総額を表示しており、消費税が課税される場合は税込み価格です。(1,000円未満は切り上げ。)
税率は引き渡し時期により異なりますので、各物件の詳細につきましてはお問い合わせください。 - ※敷地権利が借地権のものは価格に権利金を含みます。
- ※制作中に内容が変更される場合もありますので、あらかじめご了承ください。
- ※購入の前には物件内容や契約条件についてご自身で十分な確認をしていただくようにお願いいたします。
- ※完成予想図はいずれも外構、植栽、外観等実際のものとは多少異なることがあります。
- ※CG合成の画像の場合、実際とは多少異なる場合があります。
周辺地図
周辺施設一覧
- ショッピングセンター
- スーパー
- コンビニ
- ドラッグストア
- ホームセンター
- 飲食店
- その他店舗
- 商店街
- 大学
- 専門学校
- 高校・高専
- 中学校
- 小学校
- 保育園
- 幼稚園
- 公民館・児童館
- 病院
- 郵便局
- 役所
- 図書館
- 金融機関
- 警察・消防
- 趣味・娯楽施設
- 公園・運動施設
- 周辺の街並み
- 駅
- その他
お問い合せ先
- 平和ホーム株式会社
- お電話でのお問い合わせは
0463-32-9922「ホームページを見た」とお問い合わせください - 神奈川県平塚市見附町12-1
- 営業時間:10:00~18:00
- 定休日:毎週火・水曜日
- 免許番号:神奈川県知事免許(4)第26970号
- 住まいの相談室 平和ホーム株式会社ホームページ
- 土地をエリアから探す
- 平塚市
- 南原
- 平塚市南原3丁目全2区画の土地






